Prawidłowy montaż zaworu zwrotnego w instalacji z pompą głębinową to często niedoceniany, ale absolutnie kluczowy element, który decyduje o długiej i bezawaryjnej pracy całego systemu. Jako instalator z wieloletnim doświadczeniem, widziałem wiele problemów wynikających z błędnego umiejscowienia tego niewielkiego, lecz niezwykle ważnego komponentu. W tym artykule pokażę Ci, gdzie dokładnie powinien znaleźć się zawór zwrotny w Twojej studni, aby zapewnić optymalne działanie i uniknąć kosztownych awarii.
Optymalne miejsce montażu zaworu zwrotnego w studni klucz do długiej pracy pompy
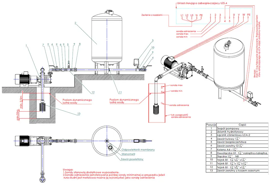
- Kluczowa rola: Zawór zwrotny zapewnia jednokierunkowy przepływ wody, chroniąc pompę przed cofaniem się wody i uszkodzeniami.
- Ochrona pompy: Zapobiega pracy na sucho, uderzeniom hydraulicznym i częstemu załączaniu się pompy, co wydłuża jej żywotność i oszczędza energię.
- Złoty standard: Najczęściej rekomendowany jest montaż zaworu zwrotnego bezpośrednio na króćcu tłocznym pompy głębinowej lub tuż nad nią w studni.
- Ryzyko montażu w budynku: Umieszczenie zaworu w domu, przed hydroforem, może obciążać pompę, prowadząc do opróżniania całego słupa wody przy każdym starcie.
- Wybór i kierunek: Zawsze wybieraj mosiężny zawór grzybkowy i bezwzględnie zwróć uwagę na strzałkę kierunku przepływu musi wskazywać od pompy do instalacji.
- Drugi zawór: W bardzo głębokich studniach warto rozważyć montaż drugiego zaworu (np. przed hydroforem) dla dodatkowej ochrony, ale unikaj bezcelowego dodawania wielu zaworów, które generują opór.

Rola zaworu zwrotnego w instalacji studziennej
Zawór zwrotny to z pozoru prosty element, ale jego funkcja w instalacji z pompą głębinową jest absolutnie fundamentalna. Jego głównym zadaniem jest zapewnienie jednokierunkowego przepływu wody od pompy w kierunku instalacji domowej. Działa jak strażnik, który pozwala wodzie płynąć tylko w jedną stronę, skutecznie blokując jej powrót do studni, gdy pompa przestaje pracować. Bez tego mechanizmu, cała woda z rury tłocznej cofałaby się, a to generowałoby szereg problemów.
Niewidzialna ochrona: co się dzieje, gdy zaworu brakuje lub jest źle zamontowany?
Brak zaworu zwrotnego lub jego nieprawidłowe umiejscowienie to prosta droga do poważnych problemów z instalacją i, co gorsza, z samą pompą. Oto, jakie negatywne konsekwencje mogą wystąpić:
- Uszkodzenie pompy: Cofająca się woda powoduje, że pompa musi każdorazowo napełniać cały słup wody od nowa. To generuje nadmierne obciążenie silnika przy każdym starcie, co znacząco skraca jego żywotność.
- Praca na sucho: W skrajnych przypadkach, gdy woda cofa się zbyt szybko, pompa może pracować na sucho przez krótką chwilę, zanim ponownie zassie wodę, co jest dla niej niezwykle szkodliwe.
- Uderzenia hydrauliczne: Nagłe zatrzymanie cofającej się wody lub jej ponowne uruchomienie może wywoływać tzw. uderzenia hydrauliczne, czyli gwałtowne skoki ciśnienia, które obciążają zarówno pompę, jak i całą instalację.
- Częste załączanie się pompy: Bez zaworu zwrotnego, ciśnienie w instalacji będzie szybko spadać po wyłączeniu pompy, ponieważ woda będzie uciekać z powrotem do studni. To spowoduje, że pompa będzie załączać się znacznie częściej niż powinna, pracując w krótkich cyklach.
- Spadek ciśnienia i zapowietrzanie: Ciągłe cofanie się wody prowadzi do niestabilnego ciśnienia w kranach i może powodować zapowietrzanie się instalacji, co objawia się bulgotaniem i niestabilnym strumieniem wody.
Oszczędność energii i dłuższa żywotność: jak zawór zwrotny chroni Twój sprzęt?
Prawidłowo działający zawór zwrotny to prawdziwy strażnik Twojej instalacji. Zapobiegając cofaniu się wody, eliminuje on wszystkie wymienione wyżej problemy. Dzięki temu pompa nie musi niepotrzebnie uzupełniać słupa wody, co przekłada się na znacznie mniejszą częstotliwość jej załączania się. Mniej cykli pracy to nie tylko mniejsze zużycie energii elektrycznej, ale przede wszystkim wydłużona żywotność urządzenia. Pompa pracuje w optymalnych warunkach, bez nadmiernych obciążeń i szkodliwych uderzeń hydraulicznych, co w efekcie chroni Twój portfel przed kosztownymi naprawami i wymianą sprzętu.

Wybór miejsca montażu zaworu zwrotnego: analiza scenariuszy
Skoro już wiemy, jak ważny jest zawór zwrotny, pora przyjrzeć się, gdzie dokładnie powinien być zamontowany. Wybór lokalizacji ma kluczowe znaczenie dla efektywności i niezawodności całego systemu. Przeanalizujmy trzy główne scenariusze montażu, wskazując ich zalety i potencjalne wady.
Montaż bezpośrednio na pompie głębinowej: złoty standard instalatorów
Montaż zaworu zwrotnego bezpośrednio na króćcu tłocznym pompy głębinowej to rozwiązanie, które ja osobiście najczęściej rekomenduję i stosuję. Jest to zdecydowanie najpopularniejszy i najbardziej efektywny sposób zabezpieczenia instalacji. Dlaczego? Umieszczenie zaworu w tym miejscu minimalizuje ilość wody, która może cofnąć się do studni po wyłączeniu pompy. W zasadzie, cofa się tylko niewielka objętość wody znajdująca się w samym korpusie pompy i krótkim odcinku rury między pompą a zaworem. Dzięki temu pompa jest maksymalnie chroniona przed niepotrzebnym obciążeniem przy każdym starcie, a ciśnienie w rurze tłocznej jest stabilnie utrzymywane.
Zalety i wady montażu zaworu na pompie
Zalety:
- Maksymalna ochrona pompy: Minimalizuje cofanie się wody, chroniąc pompę przed uderzeniami hydraulicznymi i nadmiernym obciążeniem.
- Stabilne ciśnienie: Skutecznie utrzymuje słup wody w rurze tłocznej, co przekłada się na stabilne ciśnienie w instalacji.
- Oszczędność energii: Pompa załącza się rzadziej, ponieważ nie musi każdorazowo napełniać rury od nowa.
- Dłuższa żywotność pompy: Mniejsze obciążenie i rzadsze starty wydłużają żywotność urządzenia.
Wady:
- Trudniejszy dostęp serwisowy: W przypadku awarii zaworu (lub pompy), konieczne jest wyciągnięcie całej pompy ze studni, co bywa uciążliwe.
- Wymaga szczelności w trudnych warunkach: Połączenie musi być wykonane bardzo precyzyjnie, aby zapewnić szczelność pod wodą.
Montaż na rurze tłocznej wewnątrz studni: alternatywne rozwiązanie
Innym, równie prawidłowym i często stosowanym rozwiązaniem, jest montaż zaworu zwrotnego na rurze tłocznej, ale tuż nad pompą, wewnątrz studni. Technicznie jest to bardzo podobne do montażu bezpośrednio na pompie. Różnica polega na tym, że zawór nie jest przykręcony bezpośrednio do króćca pompy, lecz do rury, która już odchodzi od pompy. Również w tym przypadku kluczowe jest, aby zawór znajdował się jak najniżej, aby zminimalizować objętość wody, która mogłaby się cofnąć.
Dostęp serwisowy i wpływ na instalację przy montażu w studni
Montaż zaworu na rurze tłocznej w studni, nieco wyżej niż bezpośrednio na pompie, może w pewnym stopniu ułatwić dostęp serwisowy, choć nadal wymaga wyciągnięcia pompy. Jeśli zawór zostanie zamontowany na łatwo rozłączalnym złączu, teoretycznie można by próbować go wymienić bez demontażu całej pompy, choć w praktyce jest to rzadko realizowane ze względu na ograniczoną przestrzeń i warunki pracy w studni. Wpływ na instalację jest praktycznie identyczny jak w przypadku montażu bezpośrednio na pompie woda jest skutecznie utrzymywana w rurze, a pompa pracuje optymalnie.
Montaż w budynku, tuż przed zbiornikiem hydroforowym: potencjalne zagrożenia
Ten scenariusz montażu jest rzadziej stosowany w przypadku pomp głębinowych i, szczerze mówiąc, wiąże się z pewnymi ryzykami. Jeśli zawór zwrotny jest jedynym zaworem w instalacji i znajduje się dopiero w budynku, cała woda z rury tłocznej (która może mieć kilkadziesiąt metrów długości) będzie cofać się do studni aż do poziomu lustra wody po każdym wyłączeniu pompy. To oznacza, że przy każdym starcie pompa będzie musiała podnieść cały ten słup wody od nowa. To ogromne obciążenie dla silnika, które prowadzi do jego szybszego zużycia, zwiększonego zużycia energii i częstszych awarii. Ja zdecydowanie odradzam takie rozwiązanie jako jedyne zabezpieczenie w studniach głębinowych.
Kiedy warto rozważyć montaż zaworu w domu? Wyjątkowe sytuacje
Mimo ogólnych zastrzeżeń, istnieją pewne wyjątkowe sytuacje, w których montaż zaworu zwrotnego w budynku może być uzasadniony. Zazwyczaj jednak, nawet wtedy, powinien on stanowić dodatkowe zabezpieczenie, a nie jedyne:
- Bardzo utrudniony dostęp serwisowy w studni: Jeśli studnia jest wyjątkowo wąska, głęboka lub z innych powodów dostęp do zaworu przy pompie jest skrajnie trudny, umieszczenie drugiego zaworu w domu może ułatwić przyszłe prace konserwacyjne.
- Dodatkowe zabezpieczenie przed uderzeniem hydraulicznym: W bardzo rozbudowanych instalacjach lub w przypadku bardzo głębokich studni, drugi zawór w budynku może stanowić dodatkową barierę ochronną, odciążając zawór przy pompie.
- Instalacje z pompami powierzchniowymi: W przypadku pomp powierzchniowych, które zasysają wodę, montaż zaworu zwrotnego na końcu rury ssącej w studni (lub na jej początku w budynku) jest standardem. Jednak mówimy tu o pompach głębinowych, gdzie zasada działania jest inna.
Prawidłowy montaż zaworu zwrotnego krok po kroku
Nawet najlepszy zawór, zamontowany w idealnym miejscu, nie spełni swojej funkcji, jeśli sam montaż zostanie wykonany niedbale. Precyzja i dbałość o detale są tutaj kluczowe. Pozwól, że przeprowadzę Cię przez najważniejsze aspekty.
Wybór odpowiedniego zaworu: mosiężny grzybkowy to pewny wybór
Nie oszczędzaj na zaworze zwrotnym! To mały element, ale jego awaria może pociągnąć za sobą poważne konsekwencje. Do instalacji studziennych najodpowiedniejsze są zawory grzybkowe. Dlaczego? Są one bardziej odporne na zanieczyszczenia (np. drobny piasek) niż zawory klapowe, które łatwiej się blokują. Materiał wykonania jest równie ważny zawsze rekomenduję zawory mosiężne. Mosiądz jest odporny na korozję, co jest niezwykle istotne w środowisku wodnym, i zapewnia niezawodność przez wiele lat. Unikaj tanich zaworów z plastikowymi elementami wewnętrznymi to proszenie się o kłopoty.
Strzałka, która ma znaczenie: klucz do prawidłowego kierunku przepływu
To jest absolutnie krytyczny punkt! Na korpusie każdego zaworu zwrotnego znajduje się strzałka wskazująca kierunek przepływu wody. Musisz upewnić się, że ta strzałka wskazuje od pompy w stronę instalacji domowej. Jeśli zamontujesz zawór odwrotnie, woda po prostu nie będzie mogła przepływać z pompy do domu, a cała instalacja będzie sparaliżowana. Zawsze sprawdzaj to dwukrotnie przed ostatecznym dokręceniem!
Perfekcyjna szczelność połączeń: taśma teflonowa czy pakuły?
Szczelność połączeń to podstawa. Nieszczelny zawór zwrotny to zawór, który nie spełnia swojej funkcji. Do uszczelniania gwintów możesz użyć taśmy teflonowej lub pakuł z pastą uszczelniającą. Ja osobiście preferuję pakuły, ponieważ pozwalają na lepsze dopasowanie i są bardziej odporne na drobne ruchy czy wibracje, ale taśma teflonowa również jest dobrym rozwiązaniem, pod warunkiem, że zostanie nawinięta prawidłowo i w odpowiedniej ilości. Pamiętaj, aby dokręcić połączenia solidnie, ale z wyczuciem, aby nie uszkodzić gwintów.
Unikaj tych błędów przy montażu zaworu zwrotnego
Wieloletnie doświadczenie nauczyło mnie, że nawet drobne błędy montażowe mogą prowadzić do poważnych i kosztownych konsekwencji. Uniknięcie ich zapewni Ci bezproblemową pracę instalacji przez długi czas.
Błąd #1: Odwrócony kierunek jak jedna pomyłka paraliżuje cały system
Jak już wspomniałem, to najczęstszy i najbardziej frustrujący błąd. Zamontowanie zaworu zwrotnego w złym kierunku oznacza, że woda nie będzie mogła opuścić pompy. Instalacja po prostu nie zadziała. Pompa będzie próbować tłoczyć wodę, ale natrafi na zablokowany przepływ. Może to prowadzić do przegrzania silnika, a w najlepszym wypadku do konieczności ponownego wyciągania pompy ze studni i poprawiania montażu. Zawsze, ale to zawsze, sprawdzaj strzałkę kierunku przepływu!
Błąd #2: Zanieczyszczenia w zaworze cichy zabójca szczelności
Podczas montażu łatwo o to, by do wnętrza zaworu dostały się drobne zanieczyszczenia piasek, opiłki, resztki uszczelniacza. Jeśli takie zanieczyszczenia osiądą na gnieździe zaworu, uniemożliwią jego całkowite zamknięcie. Zawór stanie się nieszczelny, a objawy będą takie same jak w przypadku jego braku: spadek ciśnienia w instalacji, częste załączanie się pompy, cofanie się wody. Zawsze przed montażem upewnij się, że zawór jest czysty, a podczas pracy staraj się unikać wprowadzania brudu do instalacji.
Błąd #3: Ignorowanie dostępu serwisowego problem, który wróci za kilka lat
Choć zawór zwrotny jest elementem trwałym, to jak każdy komponent mechaniczny, może kiedyś wymagać konserwacji lub wymiany. Ignorowanie kwestii dostępu serwisowego na etapie montażu to błąd, który zemści się w przyszłości. Jeśli zawór jest zamontowany w trudno dostępnym miejscu, jego wymiana może być niezwykle skomplikowana i kosztowna. Zawsze myśl perspektywicznie zaplanuj montaż tak, aby w razie potrzeby serwis był możliwy do przeprowadzenia z rozsądnym nakładem pracy.
Kiedy warto rozważyć montaż drugiego zaworu zwrotnego?
W większości standardowych instalacji z pompą głębinową jeden, prawidłowo zamontowany zawór zwrotny jest w zupełności wystarczający. Istnieją jednak sytuacje, w których warto rozważyć montaż dodatkowego zabezpieczenia.
Bardzo głęboka studnia: jak duży słup wody zagraża instalacji?
W przypadku bardzo głębokich studni, gdzie słup wody w pionie jest znaczny (np. kilkadziesiąt metrów), montaż drugiego zaworu zwrotnego jest praktykowany i ma swoje uzasadnienie. Duża masa wody w rurze tłocznej generuje spore ciśnienie hydrostatyczne. Jeden zawór przy pompie musi wytrzymać to całe obciążenie. Dodatkowy zawór, zamontowany np. przed hydroforem w budynku, odciąża zawór główny i stanowi dodatkowe zabezpieczenie przed uderzeniami hydraulicznymi, które w tak długich instalacjach mogą być szczególnie destrukcyjne. To takie podwójne ubezpieczenie dla Twojego systemu.
Gdzie zamontować drugi zawór, aby skutecznie chronić pompę i rury?
Jeśli zdecydujesz się na montaż drugiego zaworu zwrotnego, najlepszym miejscem będzie tuż przed zbiornikiem hydroforowym w budynku. W ten sposób zabezpieczasz całą instalację domową i odciążasz zawór przy pompie, jednocześnie mając łatwy dostęp do drugiego zaworu w razie potrzeby serwisu.
Przeczytaj również: Jak zamontować listwy PCV? Poradnik krok po kroku
Potencjalne ryzyko i opory: kiedy dwa zawory to o jeden za dużo?
Warto jednak pamiętać, że każdy dodatkowy element w instalacji, w tym zawór zwrotny, generuje dodatkowy opór przepływu. Bezcelowe montowanie wielu zaworów bez wyraźnej potrzeby może negatywnie wpłynąć na wydajność pompy i ciśnienie w instalacji. W większości przypadków, gdzie studnia nie jest ekstremalnie głęboka, jeden solidny zawór zamontowany bezpośrednio przy pompie jest optymalnym i wystarczającym rozwiązaniem. Zawsze kieruj się zdrowym rozsądkiem i specyfiką swojej instalacji.






